


A belső villamos hálózat tervezése egy ház esetében kulcsfontosságú lépés, amely meghatározza az épület elektromos rendszerének hatékonyságát, biztonságos és hosszú távú működését. Íme egy blogbejegyzés-javaslat a ház belső villamos hálózatának tervezéséről:
Hogyan Tervezd Meg a Házad Belső Villamos Hálózatát?
Egy új otthon építése vagy felújítása során a belső villamos hálózat tervezése az egyik legfontosabb feladat, amely biztosítja az elektromos rendszerek biztonságos és hatékony működését. A megfelelő tervezés nemcsak a kényelmet növeli, de megakadályozza a későbbi problémákat és növeli az ingatlan értékét is. Nézzük meg, mik azok a fontos szempontok, amelyeket figyelembe kell venni a villamos hálózat tervezésénél!
1. Alaprajz és helyiségek funkciói
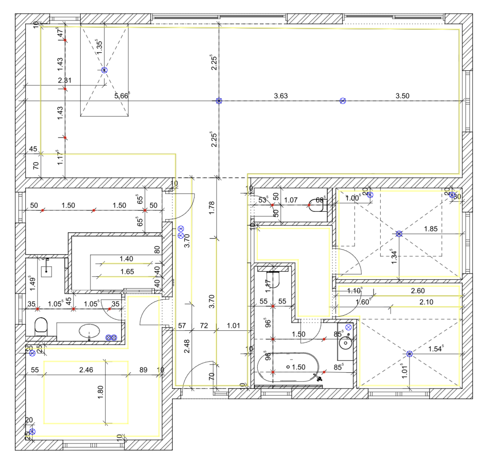
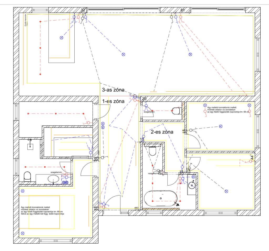
Az első lépés a villamos hálózat megtervezésében az alaprajz pontos ismerete és a helyiségek funkcióinak átgondolása. Minden helyiségnek megvannak a saját elektromos igényei. A nappaliban több aljzatra van szükség az elektronikai eszközök miatt. A konyhában a nagyteljesítményű és helyhez kötött gépek pl: tűzhely, sütő, hűtő külön áramköröket igényelnek, míg a fürdőszobában a világítás és biztonsági elemek kiemelt figyelmet igényelnek. Minden helyiséghez meg kell határozni a szükséges dugaszoló aljzatok, világítási kapcsolók és a világítási pontok számát és elhelyezését.
2. Teljesítmény és áramkörök tervezése
Minden otthon különböző teljesítményigénnyel rendelkezik, amelyet az ott található készülékek és eszközök határoznak meg. Fontos, hogy az elektromos rendszer képes legyen kezelni a csúcsterhelést is, amikor több eszköz egyidejűleg működik. Az áramkörök kialakítása során célszerű elkülöníteni a nagyfogyasztású készülékeket pl: mosógép, szárítógép, sütő, tűzhely, klíma stb. ezeket célszerű külön áramkörökre, amennyiben 3 fázisú a rendszer külön fázisra kötni, hogy megelőzzük a túlterhelést ami a vezetékek melegedéséhez vezet és a kismegszakítók leoldásához.
3. Világítási rendszer kialakítása
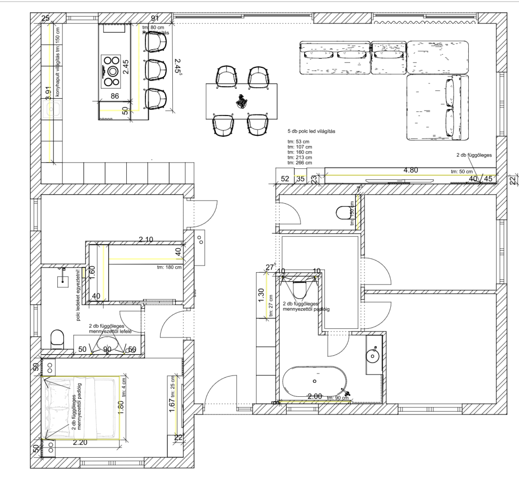
A világítási rendszer megtervezésekor figyelembe kell venni a helyiségek funkcióit és az igényeket. Az általános világítás melLett érdemes külön figyelmet fordítani a hangulatvilágításra és a munkaterületek megvilágítására is. Például konyhapult vagy az íróasztal környékén érdemesebb erősebb fényforrást biztosítani. Az energiatakarékos megoldások pl: LED világítás alkalmazása, hosszú távon jelentős költségmegtakarítást jelenthet.
4. Villamos elosztó tervezése
A ház villamos hálózatának a szíve a kapcsolószekrény, ahol a kismegszakítók, túlfeszültség levezetők, áram-védőkapcsolók (AVK, Fi-relé) és egyébb védelmi eszközök találhatók. A tervezés során gondoskodni kell arról, hogy minden áramkör megfelelően biztosított legyen. Az adott vezeték keresztmetszethez megfelelő kismegszakítót válasszunk, áram-védőkapcsolónál megfelelő érzékenységűt ha lehetőségünk engedi több AVK-t építsünk be az adott elosztóba.
5. Jövőbeli igények és bővíthetőség
Fontos figyelembe venni, hogy az elektromos igények az idő múlásával változhatnak. A ház villamos hálózatának tervezésekor gondoljunk a jövőbeli lehetőségekre is, például egy esetleges klímaberendezés, napelem rendszer vagy elektromos autó töltőjének telepítésére. Az előrelátható tervezés lehetővé teszi, hogy ezek a rendszerek később könnyen integrálhatók legyenek, anélkül, hogy komolyabb bontási munkákat kellene végezni.
6. Szakértő bevonása
Noha sokan próbálkoznak az alapvető villanyszerelési feladatokat saját maguk elvégezni, a teljes hálózat tervezéséhez és kiépítéséhez mindig érdemes tapasztalt szakembert bevonni. Egy profi villanyszerelő biztosítja, hogy minden szabványos és biztonságos módon kerüljön kivitelezésre, elkerülve a későbbi problémákat, hibákat, veszélyes helyzeteket.
Összegzés
A ház belső villamos hálózatának tervezése egy összetett, de elengedhetetlen lépés az építkezés vagy felújítás során. Egy jól megtervezett villamos hálózat nemcsak biztonságos és kényelmes, de rugalmasan bővíthető is a jövőben. Ha kérdéseid vannak a tervezéssel kapcsolatban, vagy szakértő segítségére vagy szükséged a kivitelezésben, fordulj hozzánk bizalommal.